联系热线
01
系统方案
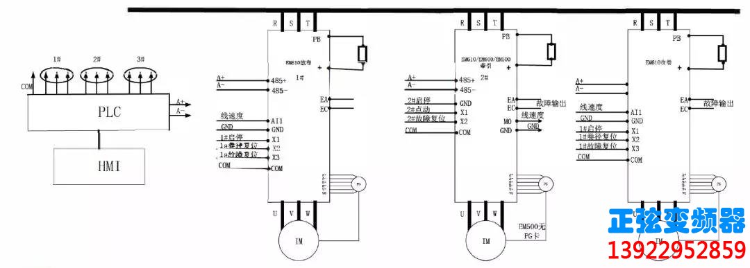
薄膜/纸张分切机是一种将宽幅纸张或薄膜分切成多条窄幅材料的机械设备,常用于造纸机械及印刷包装机。 其传动系统主要由一台主机变频器、一台放卷变频器及两台收卷变频器组成。 其中主机变频器工作在开环矢量方式或者闭环矢量方式下,控制系统线速度。 放卷变频器及两个收卷变频器工作在开环转矩模式下,控制系统放料及分切后的上下收料的张力。

02
方案说明
主机变频器使用EM500/EM600/EM610,控制分切机的运行线速度,根据材料要求选择开环或者闭环矢量控制方式,主速度一般用电位器/Modbus485通讯来给定,其MOl端口作为运行线速度的输出,作为放卷变频器及上、 下收卷变频器的结速度给定。 放卷变频器及收卷变频器使用正弦EM610张力专用变频器,放卷和收卷变频器均工作在开环转矩模式下;正弦电气EM610变频器是一种可以实现恒张力控制的变频器,可以通过变频器内部计算,获得料卷实时的卷径,通过控制变频器的输出转矩来获得恒张力控制。

03
方案特点
* 力矩控制精度高
* 有效补偿输出转矩,保证材料恒张力
* 实现多路模拟电压输入、电流输出
* 成本低,性价比高
* 应用场合广泛


